2026.03.24 [ ブログ施工進捗 ]
【再販リノベPROJECT 02】第3話:確認しよう!給排水配管の老朽化とリスクについて
今回ご紹介するのは、平屋住宅リノベーションにおける給排水配管の既存状態の確認と、新しい間取りへの変更に伴う既存設備の移設・新設工事についてです。
キッチンやお風呂、洗面台、トイレなど、日々の暮らしを支える水回りは、すべて配管によってつながっています。
しかし、築年数の経った住宅では、こうした配管が経年劣化しているケースも少なくありません。
01|配管の老朽化で起こりうるトラブル
築年数の古い住宅では、配管の劣化によって次のようなトラブルが発生する可能性があります。
・配管の腐食や劣化による水漏れ
・サビや汚れによる水のにごり
・排水管の詰まりや流れの悪化
・床下や壁内での漏水による建物へのダメージ
特に床下などの見えない場所で水漏れが発生すると、気づかないまま建物の劣化が進んでしまうこともあります。
02|既存状態の確認
▼既存浴室 給排水配管

▼既存洗面室 給排水配管

▼既存トイレ 給排水配管

▼既存キッチン 給排水配管

フルリノベーションの場合は、床や壁を解体するタイミングで配管の状態を確認することができます。
状態によっては、
・配管の一部交換
・新しい配管への更新
・配管ルートの見直し
などを行うことで、将来的なトラブルを防ぐことができます。
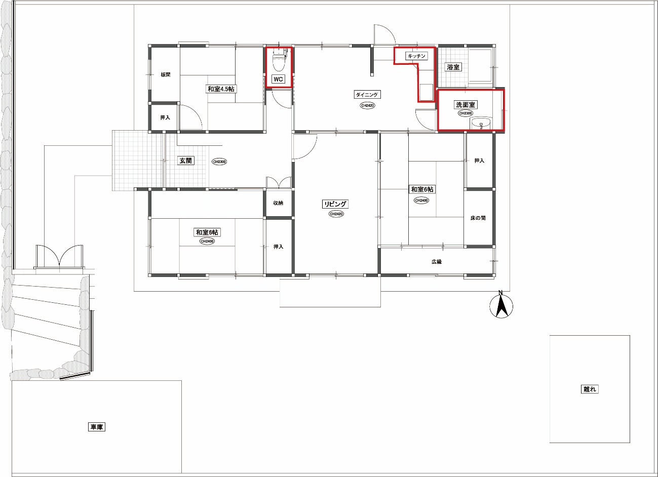
また、今回のリノベーションではキッチンや手洗い場の移設、新設に伴う給排水配管工事を行います。
【既存平面図】
【プラン平面図】
リノベーションでは設備の配置変更に合わせて、配管計画も重要な設計ポイントとなります。
03|快適に長く住むための大切なポイント
配管は普段意識することが少ない部分ですが、生活に直結する大切なインフラです。
目に見える表面的な部分だけを改修するのではなく、建物内部の状態まで確認しながら整えていくことが大切です。
▼浴室 給排水配管

▼洗面室 給排水配管

▼トイレ 給排水配管

▼キッチン 給水管配管

完成後には見えなくなる部分だからこそ、私たちはひとつひとつ丁寧に確認しながら工事を進めています。
次回は、リノベーション工事の中でも重要な
『電気・換気設備工事』についてご紹介します。
・室内の空気環境を整える換気設備
・照明スイッチやコンセントなどの暮らしやすさや生活動線に関わる電気設備
日々の快適な暮らしを支える設備工事のポイントを詳しくご紹介します。
◀前回:【再販リノベPROJECT 02】第2話:構造編これなら安心!既存構造や補強状況を確認し、耐震補強計画を作成
次回:【再販リノベPROJECT 02】第4話:電気・換気設備工事▶
ブログの物件は申し込み受付中です!
北九州市のこだわりリノベーション・リフォームなら
株式会社ディック
福岡県北九州市八幡西区鷹の巣1-10-21
TEL:093-642-8181
ディックHP:https://duc.jp/



